















5 Bedrooms 2 Bathrooms 2 Reception
Terraced - Freehold
17 Photos
Falmouth
We are delighted to offer as the vendors sole agents, this LIGHT AND BRIGHT, TERRACED VICTORIAN TOWN HOUSE, set within a VERY CONVENIENT LOCATION close to all local amenities, the town and Falmouth's famous sea front and coastal walks.
The property, has undergone an extensive program of refurbishment during our vendors occupation and still enjoys many original features including picture rails, original stripped wooden floorboards and original Victorian fireplaces in most of the bedrooms. Other benefits include a new roof, facias and guttering. (2025)
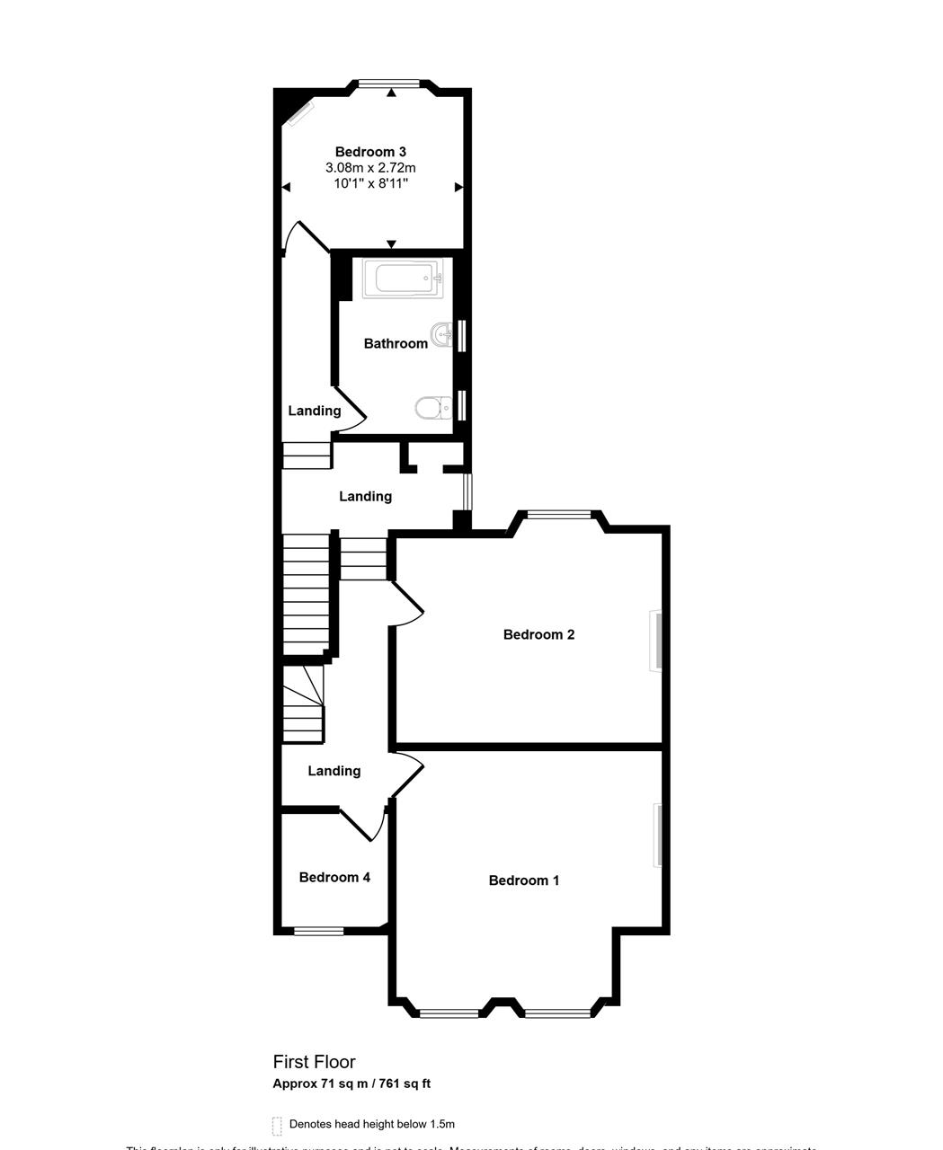
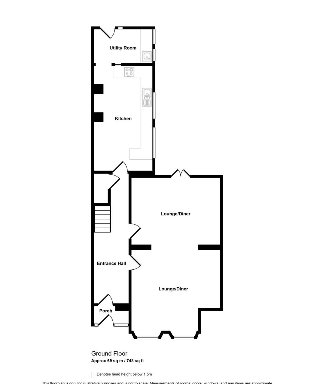
This bright and light home has spacious accommodation in brief comprising; entrance vestibule, hallway, lounge/dining room, bespoke fitted kitchen and utility room on the ground floor. The first floor has a split-level landing. Steps to the rear landing take you to the family bathroom and the third bedroom. Further steps take you to the front landing where you will find the principal bedroom, bedroom two, and the bedroom four/home office. From the landing, a turning staircase takes you to the second floor where you'll find a fifth bedroom/suite, with a dressing/sitting room and an en-suite shower room. There is a further box room currently used for storage. To the rear of the property is a good sized, split-level courtyard garden and a purpose built timber shed.
Falmouth's popular and bustling town centre and waterside districts are within walking distance where you can find a thriving town centre which has an excellent blend of individual shops and high street names together with an eclectic selection of multi-national restaurants, bars, coffee houses, art galleries, the Poly Arts Theatre, multi-screened cinema and at the far end of town, the National Maritime Museum. The town plays host to a variety of food and music festivals throughout the year which prove popular with locals and visitors alike. The town has the third natural deepest harbour in the world providing excellent water sport facilities with Falmouth Docks and Pendennis Shipyard providing employment for a large part of the towns population. There is good local schooling with primary and secondary education and various university campuses.
An early appointment to view is highly recommended to avoid disappointment.
Why not call for your personal viewing today?
THE ACCOMMODATION COMPRISES:
The property is accessed via a wooden garden gate from Western Terrace with a patterned brick path that meanders up to the front door.
WHITE HALF GLAZED COMPOSITE DOOR WITH ETCHED GLASS AND GLAZED SIDE PANELS EITHER SIDE TO:
ENTRANCE VESTIBULE
Grey ceramic wall tiling to dado height, original ornate light holders, granite step and half glazed internal wood door with light panel above to:
ENTRANCE HALL 1.75m (5'9") x 6.63m (21'9")
Wood panelled doors to lounge and dining room, original wood flooring, Victorian style radiator, coat hooks with shelving above, electric meter box, pendant light, staircase to the first floor level with original balustrades, under stairs storage cupboard.
LOUNGE 4.47m (14'8") x 4.39m (14'5")
A light and bright reception room with two large UPVC double glazed windows overlooking the front aspect, two Victorian style radiators, picture rails, fitted carpet, open to:
DINING ROOM 4.52m (14'10") x 3.53m (11'7")
Also accessed from the hallway via a white painted panelled door, UPVC double glazed French doors leading to the rear, exposed original wooden floorboards, Victorian style radiator, picture rails, centre ceiling rose with over table pendant light, a range of pastel coloured base cupboards providing substantial storage and wall-to-wall fitted shelving above.
KITCHEN 2.97m (9'9") x 5.33m (17'6")
A spacious light kitchen with two large UPVC double glazed windows overlooking the side aspect with geometric tiled sills. Fitted with a range of bespoke hand built base units incorporating cupboards and drawers in medium oak with green melamine work surfaces and breakfast bar with geometric design ceramic tiling over, inset 1 1/2 bowl single drainer stainless steel sink unit with chrome mixer tap, integrated dishwasher, Smeg electric hob with extractor in boxed housing above, inset Stoves under counter double oven. A range of white bespoke hand built, full height units incorporating a integrated refrigerator/freezer and spacious larder cupboard. Chimney recess, vinyl flooring, inset ceiling spotlights above breakfast bar, unique ceiling light fitting incorporating 10 globe bulbs, open to:
UTILITY ROOM 2.82m (9'3") x 1.73m (5'8")
Two UPVC double glazed windows overlooking the side with terracotta tiled sills, white wall-to-wall worktop incorporating a square stainless steel sink with mixer tap, terracotta tiled splash back, space and plumbing for washing machine and tumble dryer, Sheila Maid clothes airer, terracotta tiled flooring, single radiator, composite fully glazed door to the rear, slate door step.
STAIRS FROM HALL TO FIRST FLOOR LANDING
UPVC double glazed window to the side, recess housing Worcester gas central heating boiler, pendant light.
REAR LANDING
With panelled doors to bathroom and bedroom three.
BATHROOM 1.88m (6'2") x 2.90m (9'6")
Two frosted UPVC double glazed windows to the side elevation with wooden sills. Fitted with a white suite comprising; panelled bath with brass effect traditional shower and drench head over with glass shower screen and ceramic tiled walls, pedestal wash hand basin with brass effect mixer tap, closed coupled wc, two flush ceiling lights, radiator, vinyl flooring.
BEDROOM THREE 3.07m (10'1") x 2.72m (8'11")
UPVC double glazed window with roller blind overlooking the rear, central pendant light, original ornate Victorian wrought iron fireplace set into corner, radiator, fitted carpet, panelled door from landing.
FROM THE REAR LANDING, STEPS TO UPPER LANDING
With under stairs storage cupboard and panelled doors to three bedrooms.
BEDROOM TWO 4.50m (14'9") x 3.71m (12'2")
UPVC double glazed window to the rear elevation, original painted wrought iron fireplace with painted wood surround and mantle, radiator, central ceiling light, fitted carpet.
PRINCIPAL BEDROOM 4.57m (15'0") x 4.37m (14'4")
A light and spacious bedroom with two UPVC double glazed windows overlooking the front with roller blinds, original wrought iron fireplace with painted mantle and surround, hand built wood bed frame with panelled headboard, central ceiling light, fitted carpet, vertical radiator, painted panelled door.
BEDROOM FOUR 1.75m (5'9") x 1.90m (6'3")
UPVC Double glazed window to the front elevation, radiator, central ceiling light, fitted carpet and painted panelled door.
BEDROOM FIVE 4.55m (14'11") x 4.42m (14'6")
With limited headroom in parts.
UPVC double glazed sash style window to the front elevation, original wrought iron fireplace with painted surround and mantle, three wall lights, fitted carpet.
DRESSINGROOM/SNUG 2.49m (8'2") x 2.64m (8'8")
With box style wall lights, storage recess, fitted carpet, door to:
EN-SUITE SHOWER ROOM 4.55m (14'11") x 4.42m (14'6")
UPVC double glazed window to the side with wooden sill, double shower cubicle with ceramic tiling, glass screen, shower curtain and fitted with an Aqualisa electric shower, original painted Victorian wrought iron fireplace with mantle, chrome ladder style heated towel rail, wash basin with white mixer tap and set atop a slate grey vanity unit and with white tiled splash back above, closed coupled wc, flush ceiling light, extractor fan, panelled cork flooring.
STORAGE/BOX ROOM
Small window set into sloping ceiling, wooden floorboards, small four-paned window from the landing, painted panelled door.
FRONT
From Western Terrace, the property is accessed via a wooden gate to a curved patterned brick pathway that leads to the front door. To the right hand side of the garden there is an area edged in granite with a small lawn and bordered by mature plants and trees.
REAR
To the rear, immediately adjacent to the property there is an area laid to shingle that is accessible from the dining room or the utility room. This area has wood block seating making this an ideal place to sit out with a good degree of privacy and seclusion. Wooden steps lead to a red brick area with pergola over, again providing a delightful area to sit out and also an area laid to porcelain tiling. From here there is access to a timber storage shed secured by two green doors! Throughout this garden there are areas that are planted with mature shrubs and plants. This garden is bordered by original stone and block built walls. To the rear of the garden there is access via a timber gate to the rear pedestrian service lane.
SERVICES
Mains electricity, gas, water and drainge.
COUNCIL TAX
Band D.
Reference: SK7252
Disclaimer
These particulars are intended to give a fair description of the property but their accuracy cannot be guaranteed, and they do not constitute an offer of contract. Intending purchasers must rely on their own inspection of the property. None of the above appliances/services have been tested by ourselves. We recommend purchasers arrange for a qualified person to check all appliances/services before legal commitment.
Contact Kimberley's Independent Estate Agents - Falmouth for more details
Share via social media