














4 Bedrooms 2 Bathrooms 1 Reception
Semi-Detached - Freehold
16 Photos
Penryn
A great opportunity to purchase this reverse-level spacious three/four bedroom semi-detached home set in a convenient location on the outskirts of Penryn and enjoying far reaching views across the town, Penryn Estuary and St Gluvias Church.
The property was built in the late '80's with modern features including en-suite facilities and has been further enhanced by our current vendors to offer a fourth bedroom if required. The property boasts a modern, nicely fitted integrated kitchen and gas-fired central heating. The spacious and well proportioned accommodation in brief comprises; hallway with a staircase leading down to the ground floor and doors off to a 21' lounge/diner with impressive elevated views, nicely fitted kitchen with a range of base and wall units and a door to the second bedroom with a walk-in storage area/dressing room. On the ground floor there is a family bathroom, principal bedroom with patio doors opening onto the garden and having en-suite facilities, bedroom three with outlook over the garden and a fourth bedroom which is currently used as a utility room.
Outside, the rear gardens are a true delight and offer a good degree of privacy with lawns, mature plants and shrub borders and a useful garden shed. To the front of the property there is a driveway providing off road parking for a further two vehicles.
The historic town of Penryn offers an eclectic range of day-to-day facilities including shops, restaurants, public houses and doctors surgery. The property itself is close to Penryn infant and junior school, Penryn College for secondary education and Falmouth University (Tremough Campus). Penryn station is also close by with the branch line linking Falmouth Docks to the cathedral city of Truro.
An internal viewing is strongly recommended to appreciate the accommodation on offer.
THE ACCOMMODATION COMPRISES:
All dimensions approximate.
A pathway through the front garden leads to a gate giving access to the front door.
UPVC DOUBLE GLAZED FRONT DOOR WITH GLAZED PANEL AND MATCHING SIDE WINDOW, LETTER BOX.
RECEPTION HALLWAY
A galleried landing and hallway overlooking the lower floor, textured coved ceiling with ceiling light and loft trap and access to the roof space. Doors to the living room, kitchen and bedroom.
A closed tread staircase with bannister rail leads down to the ground floor and further bedrooms.
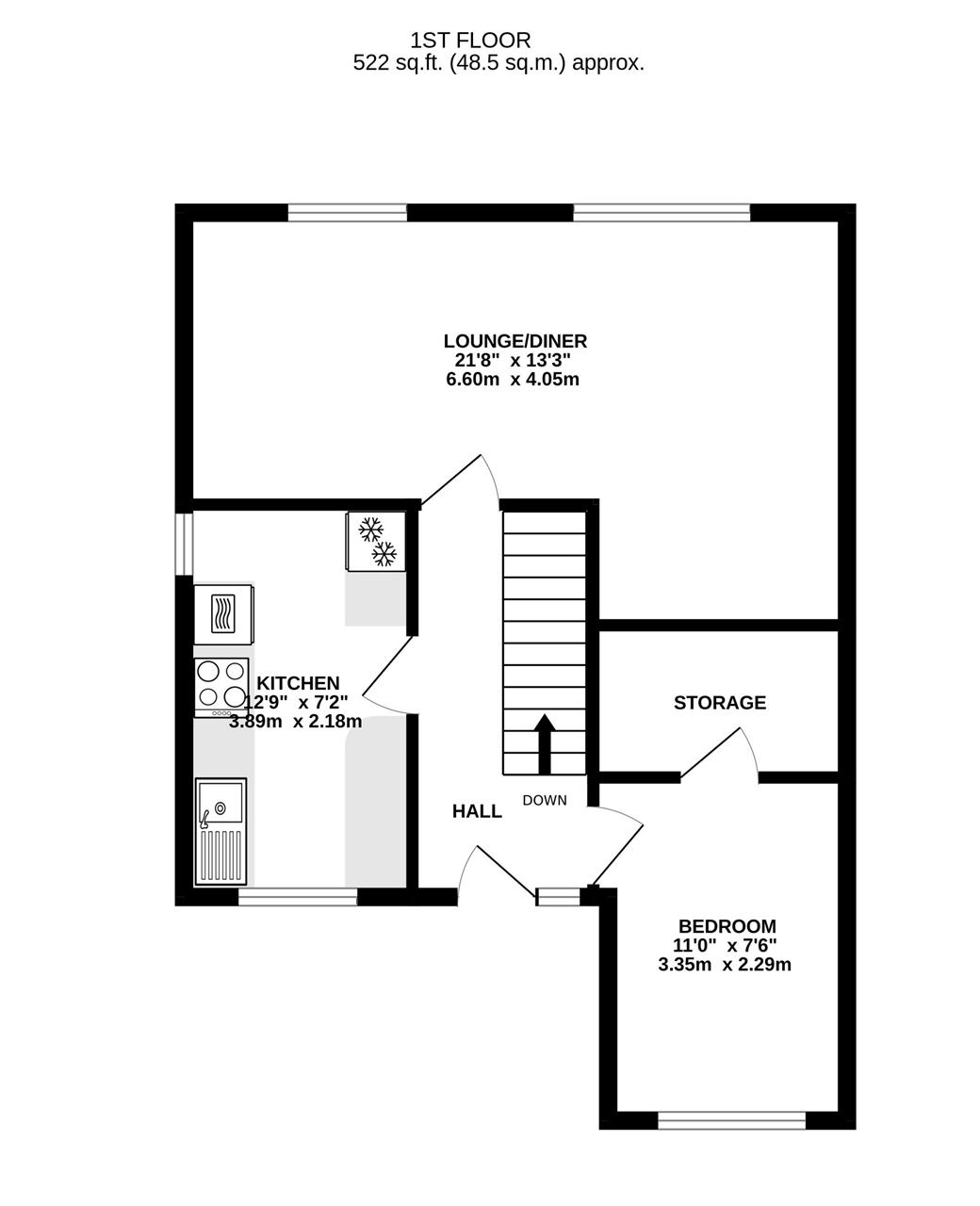
LOUNGE/DINER 6.58m (21'7") x 4.04m (13'3")
UPVC double glazed windows with fine elevated views over Penryn, countryside, St Gluvias Church and the river below. Feature fireplace with timber surround housing an electric fire, radiator, textured coved ceiling, wall lights, finished with a carpet.
KITCHEN 3.91m (12'10") x 2.21m (7'3")
A modern fitted kitchen with a wide range of base and wall units comprising of cupboards and drawers with sage coloured doors and metal door furniture, granite effect roll top work surfaces with matching splashback incorporating a interesting circular stainless steel sink with drainer and mixer tap, four-ring electric hob with stainless steel splash back and matching stainless steel extractor canopy over, built-in tilt and slide stainless steel electric oven, integrated refrigerator/freezer, recess and plumbing for dishwasher, plastered coved ceiling with spotlights, UPVC double glazed window to the front and a frosted window to the side.
BEDROOM TWO 3.66m (12'0") x 2.24m (7'4")
UPVC double glazed window to the front, radiator, textured coved ceiling with ceiling light, carpet, cabinet housing electric meters and fuse box, door to a useful storage room.
STORAGE ROOM/DRESSING ROOM
This area was initially intended to be an additional en-suite however found use as a storage room/dressing room to bedroom two, textured coved ceiling and ceiling light, carpet.
GROUND FLOOR
A closed tread staircase leads to the ground floor hallway, textured coved ceiling with ceiling light, radiator, doors to bathroom, family bathroom, utility and the bedrooms.
BATHROOM
Comprising of a three piece suite comprising; panelled bath, low-level wc and pedestal wash hand basin, textured coved ceiling with ceiling light, part tiled walls, window to side, radiator, finished with a tiled floor.
PRINCIPAL BEDROOM 4.72m (15'6") x 3.35m (11'0")
A light and airy room with a UPVC double glazed window and patio doors opening onto the enclosed rear gardens whilst giving a good degree of light, radiator, textured coved ceiling with ceiling light, finished with a carpet, door to built-in storage cupboard and archway through to en-suite facilities.
EN-SUITE SHOWER ROOM 2.36m (7'9") x 1.98m (6'6")
Comprising of a three piece suite comprising; a shower cubicle with electric shower and tiled surround, low-level wc and wall mounted wash hand basin with splashback, textured coved ceiling with ceiling light.
BEDROOM THREE 3.10m (10'2") x 2.97m (9'9")
UPVC double glazed window with outlook to the rear gardens, textured coved ceiling with ceiling light, radiator, finished with a carpet.
BEDROOM FOUR/UTILITY ROOM
This room was previously a bedroom but currently used as an extra utility area/wash room. UPVC double glazed window to the side, work bench with recess and plumbing for washing machine and dryer, radiator, built-in storage cupboard with under stairs storage, textured coved ceiling with ceiling light, carpet.
OUTSIDE
A pleasant enclosed garden with a wide variety of mature plants with shrub borders, a lawn and a range of patio areas with a gate to the side access.
GARDEN SHED - Of timber construction with windows to the side.
PARKING - To the front is a driveway providing parking for two cars and an additional patio area.
SERVICES
Mains electricity, water, drainage, telephone and broadband.
COUNCIL TAX
Band C.
Reference: SK7328
Disclaimer
These particulars are intended to give a fair description of the property but their accuracy cannot be guaranteed, and they do not constitute an offer of contract. Intending purchasers must rely on their own inspection of the property. None of the above appliances/services have been tested by ourselves. We recommend purchasers arrange for a qualified person to check all appliances/services before legal commitment.
Contact Kimberley's Independent Estate Agents - Falmouth for more details
Share via social media