















3 Bedrooms 1 Bathroom 2 Reception
Cottage - Freehold
17 Photos
Falmouth
We are delighted to offer as our clients sole agents, this attractive late Victorian built three bedroom end of terrace cottage set in a traffic free location just off the centre of this highly regarded creekside village of Mylor Bridge near Falmouth.
This fine cottage has plenty of character and charm and offers well presented and proportioned accommodation which will appeal to prospective new owners looking for a permanent home or a bolt hole near the water.
This property has much to admire with attractive stone and red brick front elevations, LPG gas central heating by radiators, UPVC double glazed windows, a solid fuel Rayburn in the kitchen and a wealth of natural woodwork including doors and flooring too.
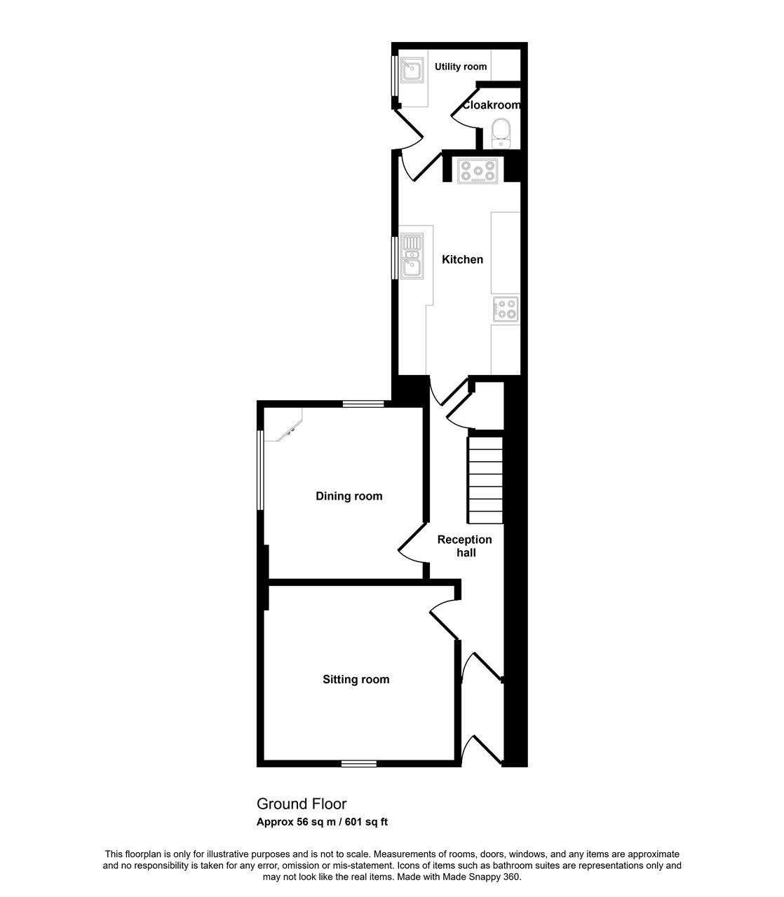
The accommodation includes on the ground floor, an entrance vestibule, reception hall, sitting room, separate dual aspect dining room, fitted galley style kitchen with Rayburn range and a utility with cloakroom at the far end. A turning staircase leads to the mezzanine level where you can find a large family bath/shower room, a turning staircase continues to the first floor landing which has three bedrooms (one with views down to the creek between houses).
Outside the cottage there are small front gardens and to the rear, delightful mature gardens with lawn, paved patio areas, a timber garden shed and summerhouse which are included in the sale.
The property is located in the well served popular village of Mylor Bridge has many local amenities, including a convenience store, fishmongers, butchers, post office, newsagents, hairdressers, dentist, doctors, a recently opened coffee house, Lemon Arms public house plus a highly regarded junior and infant schools.
The village is situated on the bus route to Falmouth and Truro, five and eight miles respectively. Mylor has been and continues to be a sought after well appointed location which can be lively for those whose wish to immerse in the village life and for the keen sailor the property is within a short distance of Mylor Yacht harbour.
An immediate viewing is highly recommended to secure this delightful cottage.
Why not call for an appointment to view today?
THE ACCOMMODATION COMPRISES:
A pathway leads to a painted wooden front door leading to:
ENTRANCE VESTIBULE
With coat hooks, fitted carpet, stripped pine and glazed internal door to:
RECEPTION HALL
With staircase to the first floor, fitted carpet, radiator, under stairs storage recess with shelving, access to principal rooms, under stairs storage cupboard.
SITTING ROOM 3.89m (12'9") x 3.45m (11'4")
Dual aspect with deep recessed box sash style UPVC double glazed window overlooking the front garden with a pleasant outlook down towards the village, a small double glazed flank window, fitted carpet, radiator, TV aerial point, corner slate plinth, stripped pine internal door.
DINING ROOM 3.53m (11'7") x 3.17m (10'5")
A fabulous bright dual aspect second reception room which has a large picture window to the side with views down to the creek and countryside, deep recessed double glazed window and window seat overlooking the rear courtyard, radiator, stripped wood flooring, TV aerial point, stripped pine internal door.
KITCHEN 3.89m (12'9") x 2.49m (8'2")
A long galley style kitchen equipped with a range of matching wall and base units, wood effect roll top work surfaces and ceramic tiling over, 1 1/2 bowl stainless steel sink unit with chrome swan neck mixer tap, electric cooker panel and cooker hood over, space for under counter refrigerator and freezer alongside, radiator, double glazed window overlooking the side patio area with views to countryside, fitted shelf for microwave, spotlights on tracking, solid fuel Rayburn range set in a tiled recess (for cooking and heating), terracotta tiled flooring, pine latch and brace door to:
UTILITY ROOM 2.39m (7'10") x 2.03m (6'8")
including cloakroom.
This has a stainless steel sink unit set on a work surface over a single base unit and plumbing for washing machine below, UPVC double glazed window, ceramic tiled flooring, coat hooks, matching wall and base unit, double glazed door leading to the outside, door to:
CLOAKROOM
With low flush wc and tiled flooring.
TURNING STAIRCASE FROM RECEPTION HALL TO MEZANNINE AND FIRST FLOOR LANDING
With access to loft space, night storage heater, fitted carpet.
BATHROOM 3.96m (13'0") x 2.62m (8'7")
(at mezzanine level).
A really spacious bathroom with a coloured suite comprising; handled and panelled bath with chrome mixer taps, shower attachment and telephone hand shower, tiled surround and fitted mirror over, pedestal hand wash basin with chrome hot and cold taps and tiled splash back, separate shower cubicle with chrome mixer shower and curved screening, radiator, fitted carpet, frosted double glazed window, linen cupboard housing a Worcester LPG gas central heating boiler and slatted shelving, stripped pine internal door.
BEDROOM ONE 3.23m (10'7") x 3.17m (10'5")
A fabulous bright main bedroom which has a dual aspect with UPVC double glazed window enjoying a pleasant outlook towards Mylor Creek and countryside, deep recessed double glazed window with window seat overlooking the rear patio, radiator, fitted carpet, stripped pine internal door.
BEDROOM TWO 3.76m (12'4") x 2.92m (9'7")
With deep recessed box sash style double glazed window and window seat enjoying a pleasant outlook towards the village, radiator, fitted carpet, stripped pine internal door.
BEDROOM THREE 2.74m (9'0") x 1.83m (6'0")
plus recess 1.32m (4'4") x 0.48m (1'7")
A deep recessed box sash style double glazed window enjoying a pleasant outlook towards the village, fitted carpet, radiator, stripped pine internal door.
GARDENS
To the front of the property there are raised lawns and a concrete path. At the rear of the property you will find a paved patio area from the kitchen, a covered area for the LPG gas bottles and steps leading to a delightful rear garden which enjoys plenty of sunshine and has a patio and gravelled area with three steps leading to gently sloping lawns with well stocked flower borders with plants and shrubs including Rhododendrons, Azaleas, Camellias and Pieris. There is a gravelled area which has a painted timber garden shed on one side and to the right, a painted timber summerhouse with covered veranda.
COUNCIL TAX
Band C.
SERVICES
Mains drainage, water and electricity, LPG gas central heating.
Reference: SK7308
Disclaimer
These particulars are intended to give a fair description of the property but their accuracy cannot be guaranteed, and they do not constitute an offer of contract. Intending purchasers must rely on their own inspection of the property. None of the above appliances/services have been tested by ourselves. We recommend purchasers arrange for a qualified person to check all appliances/services before legal commitment.
Contact Kimberley's Independent Estate Agents - Falmouth for more details
Share via social media