











4 Bedrooms 2 Bathrooms 2 Reception
Bungalow - Freehold
13 Photos
Redruth
A spacious and WELL PROPORTIONED ARCHITECTURALLY DESIGNED FOUR BEDROOM DETACHED RESIDENCE located on a small cul-de-sac in a lovely location of South Downs on the Falmouth side of the historic market town of Redruth.
The property has undergone much improvement by the current vendors and is now exceptionally well presented throughout with many modern features including a beautifully fitted modern kitchen, gas central heating and double glazing throughout.
The spacious and well proportioned, versatile accommodation comprises in brief; a covered entrance, main hallway, triple aspect living room, beautifully fitted modern kitchen, sun room/utility room, family well appointed bathroom and two generous double bedrooms on the ground floor. To the first floor there is a further landing and another two double bedrooms, the principal being 19'9" and having an en-suite shower room. Outside, in addition to the large gravelled driveway that has parking for 7/8 cars, there is a detached garage with inspection pit. The properties gardens are a true delight and a credit to the current vendors as they comprise if well stocked gardens with lawns and a range of patio and decking areas.
Southdowns in a desirable location on the Falmouth side of Redruth and has a pleasant feel to it with a small cul-de-sac that backs onto open countryside and is also accessible to the town of Redruth but also the trunk road to the A30 and to Falmouth. The historic market town of Redruth offers a good selection of facilities in the centre including independent and high street branded shops, pubs, bars and restaurants, a multi-screen cinema and theatre, educational facilities and of course the mainline station connecting to Penzance in the West and London Paddington and all points North in a Westerly direction. Redruth is situated about 12 miles from the cathedral city of Truro, 10 miles from the harbour town of Falmouth and only a short drive away from the rugged coastline and many beautiful sandy beaches that the North coast has to offer.
A viewing is strongly recommended to fully appreciate the properties size, flexible accommodation and its presentation.
THE ACCOMMODATION COMPRISES:
All dimensions approximate.
Driveway with parking for numerous vehicles leading to the garage and front door.
COVERED ENTRANCE
UPVC double glazed front door opening to:
HALLWAY
An L-shaped hallway with coat hooks, wall mounted storage, radiator, plastered and coved ceiling with ceiling light, carpet, doors to the lounge, kitchen, bathroom and two of the four bedrooms.
LIVING ROOM 7.24m (23'9") x 4.27m (14'0")
A fantastic triple aspect room with a light and airy feel due to the four large UPVC double glazed windows overlooking the front, side and rear gardens, feature fireplace with tiled surround and shelved area. We have been advised that there is a gas fire, however a panel has been put over it due to the property now having gas fired central heating throughout, textured and coved ceiling with two ceiling lights, two radiators, carpet floor, staircase leading to the first floor landing and further bedrooms, door to hallway.
KITCHEN 3.51m (11'6") x 3.05m (10'0")
A beautifully fitted modern kitchen with a wide range of base and wall units comprising of cupboards and drawers with light gloss doors and metal door furniture, roll top stone effect worktop surface with a tasteful splash back and a feature white enamelled designer sink with drainer and mixer tap, stainless steel four-ring gas hob with stainless steel extractor canopy over, built-in oven, integrated refrigerator and freezer, integrated dishwasher, plastered ceiling with spotlight arrangement, concealed fuse box, window and door to the utility/sun room, doors to the living room and hall.
SUN ROOM/UTILITY ROOM 3.05m (10'0") x 3.05m (10'0")
UPVC double glazed windows overlooking the beautiful enclosed gardens with far reaching views of Carn Brea Castle and the sea in the distance, counter top with shelving over and a concealed area with power and plumbing designated for a washing machine and dryer, plastered ceiling with spotlights, UPVC frosted double glazed door to the side and the properties gardens.
BATHROOM
A nicely appointed family bathroom comprising; a three piece suite with panelled bath, low-level wc and a wall mounted wash hand basin, tiled walls, towel rail, electric shower, UPVC double glazed frosted window, plastered ceiling with ceiling light and extractor fan.
BEDROOM THREE 3.61m (11'10") x 3.56m (11'8")
A pleasant dual aspect double bedroom with two UPVC double glazed windows with fine views including the sea in the distance, plastered ceiling with ceiling light, radiator, carpeted floor.
BEDROOM FOUR 3.53m (11'7") x 3.56m (11'8")
An L-shaped double bedroom with UPVC double glazed window having an outlook over the garden and countryside beyond, radiator, textured and coved ceiling with ceiling light, carpeted floor.
STAIRS AND LANDING
An open tread staircase leads from the living room to a landing with plastered ceiling, ceiling light, timber doors to two further bedrooms.
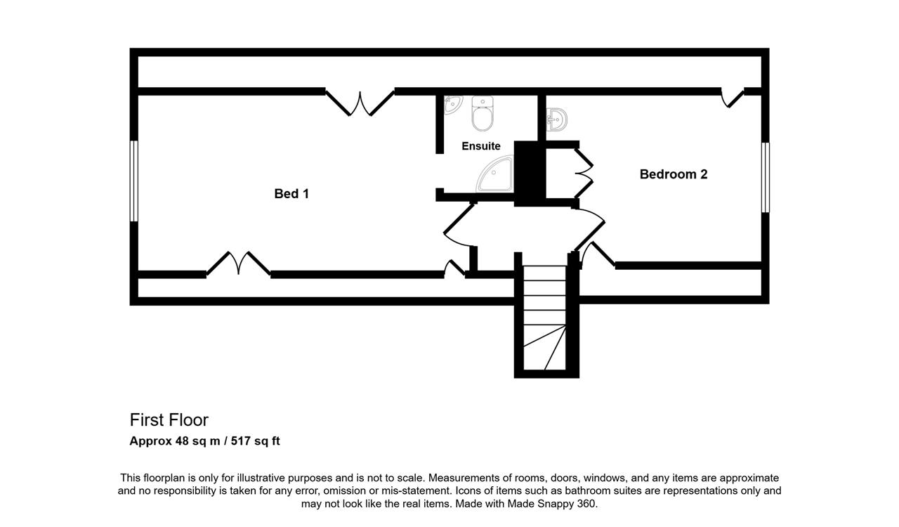
BEDROOM ONE/PRINCIPAL BEDROOM 6.02m (19'9") x 3.05m (10'0")
maximum measurements.
A generous double bedroom with a large UPVC double glazed window looking out over the cul-de-sac and farmland beyond, two built-in wardrobes providing storage and access to the eaves, radiator, plastered ceiling with ceiling light, carpet, doorway through to the en-suite facilities.
EN-SUITE SHOWER ROOM
Comprising; a three piece suite with shower cubicle having a wall mounted electric shower and glass screens, low-level wc and a wall mounted wash hand basin, ceiling light, extractor fan, loft trap, recess housing gas fired central heating boiler providing domestic hot water and the central heating facilities.
BEDROOM TWO 3.81m (12'6") x 3.12m (10'3")
maximum measurements.
A double bedroom with a range of built-in wardrobes with storage over, vanity unit with inset sink and mixer tap, doors to storage in eaves, UPVC double glazed window with outlook to the side, radiator, plastered ceiling with ceiling light, loft trap with access to roof space and finished with a carpet floor.
DETACHED GARAGE 7.01m (23'0") x 3.61m (11'10")
With a metal up and over door, useful concealed inspection pit, window to the rear garden, light and power, courtesy door to the rear opening onto the gardens.
PARKING
The property has a huge amount of parking with a gravelled drive which is located to the front and side of the property and provides parking for a large number of vehicles and could easily accommodate a motor home, boat or similar.
GARDENS
The properties gardens are a true delight and a credit to the current vendors as they are well stocked with a variety of unusual plants and shrubs and offer a good degree of privacy. There is a range of areas including a garden pond, lawn with raised borders and feature decking areas.
GARDEN SHED
Of metal construction.
SERVICES
Mains electricity, gas, water, drainage, telephone and broadband.
COUNCIL TAX
Band D.
Reference: SK7258
Disclaimer
These particulars are intended to give a fair description of the property but their accuracy cannot be guaranteed, and they do not constitute an offer of contract. Intending purchasers must rely on their own inspection of the property. None of the above appliances/services have been tested by ourselves. We recommend purchasers arrange for a qualified person to check all appliances/services before legal commitment.
Contact Kimberley's Independent Estate Agents - Falmouth for more details
Share via social media