










2 Bedrooms 2 Bathrooms 1 Reception
Flat/Apartment - Leasehold
12 Photos
Falmouth
A great opportunity to acquire this well presented, two bedroom duplex apartment which is set in a convenient location on popular tree-lined Killigrew Street, near the top of the hill and within walking distance of local amenities, various educational facilities, Penmere branch line station and a longer stroll to our vibrant town centre in one direction, the sea front and beaches on the south side.
The property was converted from an older style town house back in 2007 by Messrs Chough Construction who are a reputable, local building company. This delightful apartment comes to the market with 'no onward chain' and offering potential motivated buyers the chance to conduct a swift purchase if required.
The apartment has just been recently redecorated and has new fitted carpets along with plenty of features including gas fired central heating by radiators, a combination of UPVC and sealed unit double glazed windows and doors, a focal point fireplace with electric fire in the lounge/dining room, a fitted kitchen/breakfast room with built-in appliances and a range of built-in wardrobes on one of the bedrooms.
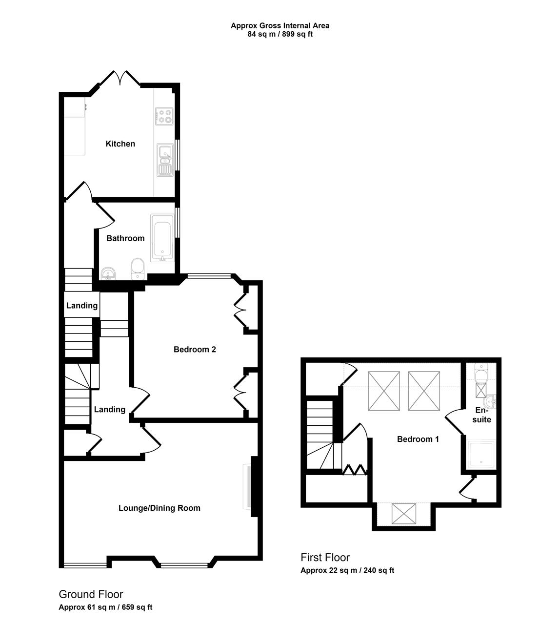
The spacious accommodation in sequence includes; a communal reception hall with own front door leading to the first floor landing and offering a fitted kitchen/breakfast room with double doors leading to the rear decking and garden, a fully fitted bathroom/wc in white, a large lounge and dining room with twin recessed windows overlooking Killigrew Street, a double bedroom with built-in wardrobe cupboards and a staircase from the landing leads to the top floor principal bedroom which has a dual aspect and an en-suite shower room.
This spacious duplex apartment is considered ideal for a first time buyer or an addition to an investors property portfolio and is ready to view now!
Why not call and make and personal viewing today?
THE ACCOMMODATION COMPRISES:
A four-panelled communal front door leads to:
ENTRANCE HALL
With electric meter box, mat well, panelled fire door into:
ENTRANCE VESTIBULE
With staircase having a wooden handrail to one side leading to:
MEZZANINE LEVEL
With access to loft space.
KITCHEN/BREAKFAST ROOM 3.15m (10'4") x 3.15m (10'4")
Equipped with a range of matching wall and base units in light wood finish, work surfaces and ceramic tiling over, 1 1/2 bowl single drainer stainless steel sink unit with chrome mixer tap, waste disposal unit under the sink, stainless steel gas hob, cooker hood over and fan assisted oven under, integrated dishwasher, refrigerator and freezer, a free standing washing machine, wall mounted Worcester gas central heating boiler, dual aspect with sealed unit double glazed windows overlooking the side, multi-paned sealed unit French doors leading to the garden, vinyl flooring, radiator, panelled fire door.
BATHROOM 2.31m (7'7") x 2.13m (7'0")
With a white suite comprising; handled and panelled bath, Mira thermostatically controlled electric shower and fully tiled surround, glass shower screen, a china semi-recessed hand wash basin with chrome easy-on mixer taps set in a white vanity unit having a mirrored bathroom cabinet and pelmet lighting over and integrated low flush wc to one side, chrome ladder style heated towel rail, wood effect vinyl finish flooring, frosted single glazed window, panelled internal door.
FIRST FLOOR LANDING CONTINUED
With double glazed landing window, deep under stairs storage cupboard, staircase to first floor.
DOUBLE BEDROOM 3.76m (12'4") x 3.10m (10'2")
Having twin double fitted wardrobe cupboards and central dresser recess with downlighters over, recessed UPVC double glazed window overlooking the rear, double radiator, coved cornicing, panelled fire door.
LOUNGE/DINING ROOM 3.76m (12'4") x 3.35m (11'0")
plus 2.59m (8'6") x 2.31m (7'7")
A generous L-shaped lounge and dining room which has the advantage of two large recessed UPVC double glazed sash windows overlooking the tree-lined Killigrew Street, two double radiators, a focal point moulded and painted fireplace having an inset electric fire with remote control set on a marble hearth, TV aerial point, coved cornicing, four-panelled internal door, two central ceiling lights.
TURNING STAIRCASE FROM FIRST FLOOR LANDING TO SECOND FLOOR.
Deep built-in storage cupboard to one side.
PRINCIPAL BEDROOM
A bright dual aspect main bedroom with double glazed opening skylight windows to the front and rear, deep recessed storage cupboards, exposed A-frame timbers, double radiator, painted fire door, second door to:
EN-SUITE SHOWER ROOM
With a white suite comprising; fully tiled shower area, Mira thermostatically controlled electric shower and folding shower screen, pedestal wash basin with chrome easy-on hot and cold taps and tiled splash back, shaver point, low flush wc, ceramic tiled flooring.
OUTSIDE
At the rear of the property there is a garden which offers a wooden decked area, a storage cupboard and a further gravelled area.
SERVICES
Mains drainage, water, electricity and gas.
COUNCIL TAX
Band B.
TENURE
Leasehold for the remainder of a 999 year lease dated from 6 November 2007.
MAINTENANCE AND GROUND RENT
To be confirmed.
Reference: SK7282
Disclaimer
These particulars are intended to give a fair description of the property but their accuracy cannot be guaranteed, and they do not constitute an offer of contract. Intending purchasers must rely on their own inspection of the property. None of the above appliances/services have been tested by ourselves. We recommend purchasers arrange for a qualified person to check all appliances/services before legal commitment.
Contact Kimberley's Independent Estate Agents - Falmouth for more details
Share via social media